ڈبل گرڈر گینٹری کرین اٹھانا
مصنوعات کی تفصیل
لفٹنگ ڈبل گرڈر گینٹری کرین ایک بھاری - ڈیوٹی میٹریل ہینڈلنگ حل ہے جو بیرونی یا انڈور استعمال کے لئے تیار کیا گیا ہے جہاں اوور ہیڈ کرین سسٹم ممکن نہیں ہے۔ اس میں دو اہم گرڈرز شامل ہیں جو ٹانگوں کے ذریعہ تائید کرتے ہیں جو زمینی ریلوں پر چلتے ہیں ، اور بڑے - اسپین اور اعلی - صلاحیت کو اٹھانے کی ایپلی کیشنز کے لئے مثالی ہے۔
بنیادی اجزاء: انجن ، بیئرنگ ، گیئر باکس ، موٹر ، گیئر
اصل کی جگہ: ہینن ، چین
وارنٹی: 2 سال
وزن (کلوگرام): 50000 کلوگرام
ویڈیو آؤٹ گوئنگ - معائنہ: فراہم کردہ
مشینری ٹیسٹ کی رپورٹ: فراہم کردہ
درخواست: آؤٹ ڈور
کلیدی الفاظ: گینٹری کرین
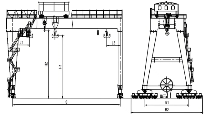
ریٹیڈ لوڈنگ کی گنجائش: 50ton
کراس ٹریول کی رفتار: 44.6m/منٹ
طویل سفر کی رفتار: 47.1m/منٹ
کنٹرول کا طریقہ: کیبن
بجلی کی فراہمی: کیبل ریل
اسٹیل ٹریک: que80
پاور: 3 فیز AC 50Hz 380V

تصاویر اور اجزاء
1. مین بیم
مواد اور من گھڑت
مواد: اعلی - طاقت ساختی اسٹیل جیسے Q235B / Q345B / Q355B
قسم:
ویلڈیڈ باکس گرڈر (بڑی صلاحیت والے کرینوں کے لئے عام)
H - بیم (چھوٹے یا درمیانے درجے کے کرینوں کے لئے)
عمل:
سی این سی اسٹیل پلیٹوں کا کاٹنے
اسمبلی اور ویلڈنگ
تناؤ سے نجات کا علاج
سینڈ بلاسٹنگ اور اینٹی - سنکنرن پینٹنگ
ریل اور واک وے کی تنصیب
2. لفٹنگ سسٹم
لفٹنگ سسٹم گینٹری کرین کا بنیادی آپریٹنگ یونٹ ہے ، جو بھاری بوجھ اٹھانے ، کم کرنے اور پوزیشن میں رکھنے کے لئے ذمہ دار ہے۔ یہ عام طور پر ایک ٹرالی پر نصب کیا جاتا ہے جو گینٹری ڈھانچے کے دو اہم گرڈروں کے ساتھ سفر کرتا ہے۔
![]() |
![]() |
3.endگاڑی
اختتامی گاڑیاں افقی اسٹیل ڈھانچے ہیں جو گینٹری کرین کے دونوں سروں پر واقع ہیں۔ وہ مرکزی بیم (گرڈرز) کی حمایت کرتے ہیں اور ٹریولنگ میکانزم رکھتے ہیں ، جس سے پورے کرین کو اپنے کام کرنے والے علاقے کے ساتھ ساتھ آگے پیچھے منتقل ہونے دیتا ہے۔
![]() ![]() |
4. کرین ٹریول میکانزم
کرین ٹریول میکانزم پوری گینٹری کرین (بشمول گینٹری فریم ، ٹرالی ، اور بوجھ سمیت) کو زمین - سوار ریلوں کے ساتھ افقی طور پر منتقل کرنے کے لئے ذمہ دار ہے۔ یہ یقینی بناتا ہے کہ کرین کام کے علاقے میں طویل فاصلے پر بوجھ لے سکتی ہے۔
5. ٹرولی ٹریول میکانزم
ٹرالی ٹریولنگ میکانزم لفٹنگ ٹرالی - کو قابل بناتا ہے جس میں لہرانے اور ہک اسمبلی - کو افقی طور پر دو اہم گرڈرز کی چوٹی کے ساتھ منتقل کرنے کا اہل بناتا ہے۔ اس تحریک سے کرین کے کام کے دور میں بوجھ کی عین مطابق پوزیشننگ کی اجازت ملتی ہے۔

7. کرین ہک
ہک بنیادی بوجھ ہے {{0} l لفٹنگ سسٹم کا ہینڈلنگ جزو۔ یہ براہ راست سلنگز ، زنجیروں ، یا لفٹنگ ٹولز کے ساتھ مشغول ہے تاکہ بوجھ کو بڑھایا جاسکے۔ ڈبل گرڈر گینٹری کرین میں ، ہک عام طور پر ایک ٹرالی لہرانے پر لگایا جاتا ہے جو مرکزی گرڈر کے ساتھ ساتھ چلتا ہے۔

8. موٹر
موٹر سسٹم لفٹنگ ڈبل گرڈر گینٹری کرین کا پاور ہاؤس ہے ، جو اس کی لہرانے ، ٹرالی سفر اور کرین ٹریولنگ افعال کو چلا رہا ہے۔ ہر تحریک میں عام طور پر ایک سرشار موٹر ہوتی ہے ، خاص طور پر صلاحیت ، ڈیوٹی سائیکل ، اور مطلوبہ صحت سے متعلق پر مبنی منتخب کی جاتی ہے۔

.
9. ساؤنڈ اور لائٹ الارم سسٹم اور حد سوئچ
صوتی اور روشنی کے الارم کا نظام اور حد سوئچ
(ڈبل گرڈر گینٹری کرین اٹھانے کے لئے)
یہ نظام حفاظتی آلات کے طور پر کام کرتے ہیں ، حادثات کو روکنے میں مدد کرتے ہیں ، سگنل کے خطرے یا آپریشن کو ، اور اس بات کو یقینی بناتے ہیں کہ کرین کی حرکتیں محفوظ حدود میں رہیں۔
1) آواز اور روشنی کے الارم کا نظام
مقصد:
کرین موومنٹ یا لفٹنگ آپریشنز کے قریبی اہلکاروں کو متنبہ کریں
شور ، بیرونی ، یا مؤثر ماحول میں مرئیت اور حفاظت کو بڑھانا
ہنگامی صورتحال ، اوورلوڈز ، یا حد سوئچ ایکٹیویشن کی صورت میں انتباہ
2) حد سوئچ
مقصد:
حد سوئچ مکینیکل حد سے زیادہ روکتے ہیں ، ساختی اجزاء کی حفاظت کرتے ہیں ، اور پیش سیٹ پوائنٹس پر حرکت روک کر حفاظت کو یقینی بناتے ہیں۔

10. سیفٹی ڈیوائسز
1) اوورلوڈ پروٹیکشن ڈیوائس
فنکشن: کرین کو اپنی درجہ بندی کی صلاحیت سے زیادہ بوجھ اٹھانے سے روکتا ہے۔
ورکنگ اصول: جب اوورلوڈ کا پتہ چلتا ہے تو ایک بوجھ سینسر یا مکینیکل اوورلوڈ لیمیٹر نے لہرانے والے سرکٹ کو کاٹ دیا۔
ڈسپلے: اکثر ایک ڈیجیٹل ڈسپلے شامل ہوتا ہے جس میں حقیقی - وقت کا وزن وزن ہوتا ہے۔
2) ایمرجنسی اسٹاپ بٹن
مقام: کنٹرول لاکٹ ، کیبن ، یا ریموٹ کنٹرولر۔
فنکشن: ہنگامی صورتحال میں کرین کے تمام کاموں کو فوری طور پر بند کردیں۔
ڈیزائن: بڑے ، سرخ ، اور رسائی میں آسان ؛ "آف" پوزیشن میں لیچز۔
3) آواز اور روشنی کے الارم کا نظام
فنکشن: کرین موومنٹ سے پہلے قابل سماعت اور بصری انتباہ۔
تنصیب: گینٹری فریم یا ٹرالی پر سوار۔
4) اوور ہیٹ / اوورکورینٹ پروٹیکشن (بجلی)
موٹر ، انورٹر ، اور کنٹرول پینل میں انسٹال
بجلی کی آگ یا نقصان کو روکنے کے لئے سسٹم کو بند کردیتا ہے
5) اینٹی - پٹڑی کے آلات
گائیڈ رولرس یا کلیمپ ریل پر پہیے جوڑتے رہتے ہیں۔
طویل یا ناہموار پٹریوں پر کام کرنے والی کرینوں کے لئے ضروری ہے۔
11.Control وضع
1) لاکٹ کنٹرول
تفصیل: ایک کیبل کے ذریعہ کرین سے منسلک ایک ہینڈ ہیلڈ کنٹرول ڈیوائس۔
خصوصیات:
آسان اور بدیہی بٹن یا جوائس اسٹکس۔
آپریٹر کو عین مطابق کنٹرول کے لئے بوجھ کے قریب چلنے کی اجازت دیتا ہے۔
کیبل کی لمبائی سے محدود۔
معاملات استعمال کریں: انتظام کے قابل فاصلوں اور اچھی مرئیت کے ساتھ اندرونی ماحول۔
2) وائرلیس ریموٹ کنٹرول
تفصیل: ایک وائرلیس ہینڈ ہیلڈ ٹرانسمیٹر جو کرین کے وصول کنندہ کے ساتھ بات چیت کرتا ہے۔
خصوصیات:
کیبل پابندیوں کے بغیر نقل و حرکت کی آزادی فراہم کرتا ہے۔
عام طور پر ریڈیو فریکوئینسی (آر ایف) مواصلات کا استعمال کرتا ہے۔
مردہ - مین سوئچ اور ایمرجنسی اسٹاپ جیسی حفاظتی خصوصیات شامل ہیں۔
معاملات استعمال کریں: آؤٹ ڈور سائٹس ، بڑے گز ، یا وہ علاقے جہاں کیبلز مؤثر ثابت ہوسکتی ہیں۔
3) آپریٹر کیبن کنٹرول
تفصیل: کرین کے ڈھانچے پر منسلک کیبن لگا ہوا (اکثر گینٹری کی ٹانگ یا ٹرالی پر)۔
خصوصیات:
آپریٹر کو کام کے علاقے کا ایک Panoramic نظارہ فراہم کرتا ہے۔
جوائس اسٹکس ، پیڈل اور کنٹرول پینلز سے لیس ہے۔
آب و ہوا {{0} comfort آرام کے لئے کنٹرول ہے۔
معاملات استعمال کریں: بڑی ، پیچیدہ سائٹوں کو اعلی صحت سے متعلق اور طویل آپریٹنگ اوقات کی ضرورت ہے۔
4) ٹچ اسکرین پینلز کے ساتھ زمینی کنٹرول
تفصیل: اعلی درجے کی انٹرفیس کے ساتھ - سائٹ یا موبائل آپریٹر اسٹیشنوں پر فکسڈ کنٹرول پینل۔
خصوصیات:
جدید پی ایل سی یا سی این سی کنٹرولرز کے ساتھ مربوط۔
ٹچ اسکرین ڈسپلے ، کیمرے اور تشخیص شامل کرسکتے ہیں۔
معاملات استعمال کریں: خودکار یا نیم - خودکار کرین سسٹم۔

12. اسکچچ

اہم تکنیکی

فوائد
1. اعلی بوجھ کی گنجائش
ڈبل گرڈر ڈیزائن مضبوط ساختی معاونت فراہم کرتا ہے ، جس سے کرین کو بھاری بوجھ اٹھانے کے قابل بناتا ہے (عام طور پر 5 ٹن سے 500+ ٹن تک)۔
2. طویل مدت اور بڑے ورکنگ ایریا
دو اہم گرڈر لمبے لمبے لمبے لمبے لمبے لمبے لمبے لمبے لمبے لمبے لمبے لمبے لمبے لمبے لمبے لمبے لمبے لمبے لمبے لمبے لمبے لمبے لمبے لمبے لمبے لمبے لمبے لمبے لمبے لمبے لمبے لمبے لمبے لمبے لمبے لمبے لمبے لمبے لمبے لمبے لمبے لمبے لمبے لمبے لمبے لمبے لمبے لمبے لمبے لمبے لمبے لمبے لمبے لمبے لمبے لمبے لمبے لمبے لمبے لمبے لمبے لمبے لمبے لمبے لمبے لمبے لمبے لمبے لمبے لمبے لمبے لمبے لمبے لمبے لمبے لمبے لمبے لمبے لمبے لمبے لمبے لمبے لمبے لمبے لمبے لمبے لمبے لمبے لمبے لمبے لمبے لمبے لمبے لمبے لمبے لمبے لمبے لمبے لمبے لمبے لمبے لمبے لمبے لمبے لمبے لمبے لمبے لمبے لمبے لمبے لمبے لمبے لمبے لمبے لمبے لمبے لمبے لمبے لمبے لمبے لمبے لمبے لمبے لمبے لمبے لمبے لمبے لمبے لمبے لمبے لمبے لمبے لمبے لمبے لمبے لمبے لمبے لمبے لمبے لمبے لمبے لمبے لمبے لمبائی کی اجازت دیتے ہیں۔
بڑے بیرونی گز ، شپ یارڈز اور صنعتی پودوں کے لئے مثالی۔
3. بہتر استحکام اور کم تخفیف
ڈبل گرڈر ڈھانچہ بھاری بوجھ کے تحت بیم کی خرابی کو کم کرتا ہے ، جس سے اٹھانے کی درستگی اور حفاظت میں بہتری آتی ہے۔
4. اونچائی کی اونچائی
واحد گرڈر کرینوں کے مقابلے میں ٹرالی کو دونوں گرڈرز کے مابین سوار ہونے کی اجازت دیتا ہے۔
5. لچکدار ترتیب
مختلف لہرانے والے آلات کی حمایت کرتا ہے: تار رسی ہوسٹس ، پکڑو بالٹیاں ، میگنےٹ ، اور ڈبل ٹرالی سسٹم۔
متعدد صنعتی ایپلی کیشنز کے مطابق موافقت پذیر۔
6. حفاظتی خصوصیات میں اضافہ
اوورلوڈ پروٹیکشن ، حد سوئچز ، اور اینٹی - تصادم کے نظام جیسے جدید حفاظتی آلات کو مربوط کرنے کے لئے ڈیزائن کیا گیا ہے۔
7. استحکام اور قابل اعتماد
سخت ویلڈنگ اور سطح کے علاج کے ساتھ اعلی - معیار کے مواد سے بنایا گیا ہے یہاں تک کہ سخت ماحول میں بھی طویل خدمت کی زندگی کو یقینی بناتا ہے۔
8. ہموار آپریشن اور عین مطابق کنٹرول
بوجھ ، ٹرالی ، اور کرین ٹریول کی ہموار اور عین مطابق نقل و حرکت کے لئے جدید موٹرز اور کنٹرول سسٹم (VFD ، ریموٹ کنٹرول) سے لیس ہے۔
درخواست
1. اسٹیل انڈسٹری
بھاری اسٹیل کنڈلی ، پلیٹوں ، بیم اور ساختی اجزاء کو سنبھالنا۔
اسٹیل ملوں اور من گھڑت دکانوں میں مواد لوڈ کرنا/ان لوڈ کرنا۔
رولنگ ملوں اور معدنیات سے متعلق کارروائیوں کی حمایت کرنا۔
2. شپ یارڈز اور بندرگاہیں
بھاری جہاز کے پرزے ، کنٹینرز اور کارگو اٹھانا اور منتقل کرنا۔
جہاز کے حصوں کی اسمبلی اور بحالی۔
کنٹینر یارڈز میں کنٹینر اسٹیکنگ اور نقل و حمل۔
3 تعمیراتی مقامات
بڑے پرکاسٹ کنکریٹ طبقات ، اسٹیل کے ڈھانچے اور سامان کو سنبھالنا۔
پل کی تعمیر اور بھاری انفراسٹرکچر پروجیکٹس۔
وسیع کھلے علاقوں میں مواد منتقل کرنا۔
4. پاور پلانٹس اور توانائی کا شعبہ
ٹربائنوں ، جنریٹرز اور بھاری سامان کی تنصیب اور بحالی۔
ٹرانسفارمرز اور پاور اسٹیشن کے اجزاء کو سنبھالنا۔
5. لاجسٹک اور گودام
بھاری کارگو کی لوڈنگ/ان لوڈنگ اور اسٹیکنگ۔
تقسیم کے بڑے مراکز اور فریٹ یارڈ کی حمایت کرنا۔
6. مینوفیکچرنگ پودے
اسمبلی لائنوں میں بھاری لفٹنگ اور عین مطابق مادی ہینڈلنگ کی ضرورت ہوتی ہے۔
آٹوموٹو ، ایرو اسپیس ، اور بھاری مشینری صنعتیں۔
7. کان کنی اور دھات کاری
ایسک کی نقل و حمل ، بھاری کان کنی کا سامان ، اور بدبودار مواد۔
بلک مواد اور بڑے اجزاء کو سنبھالنا۔
8. ریلوے یارڈز
انجنوں اور مال بردار کاروں کی لوڈنگ اور دیکھ بھال۔
ٹریک اجزاء اور بھاری ریل انفراسٹرکچر کو ہینڈل کرنا۔
کرینپیداوار طریقہ کار
1. ڈیزائن اور انجینئرنگ
گاہک کی ضروریات جمع (بوجھ کی گنجائش ، مدت ، اونچائی ، ماحول)۔
سی اے ڈی اور ایف ای ایم تجزیہ کا استعمال کرتے ہوئے ساختی ، مکینیکل اور بجلی کا ڈیزائن۔
تکنیکی ڈرائنگ اور پیداواری منصوبوں کی تیاری۔
مادی انتخاب اور خریداری کی منصوبہ بندی۔
2. مادی تیاری
سی این سی مشینوں کے ذریعہ اسٹیل پلیٹیں ، پروفائلز اور حصے سائز میں کاٹتے ہیں۔
خام مال کا کوالٹی معائنہ (کیمیائی ساخت ، مکینیکل خصوصیات)۔
3. اہم اجزاء کی من گھڑت
اہم بیم: باکس گرڈرز کی ویلڈنگ یا H - بیم ، بشمول کمک۔
گینٹری کی ٹانگیں اور اختتامی گاڑیاں: اسٹیل کی تعمیر اور اسمبلی۔
ٹرالی فریم اور لہرانے والے حصے: مشینی اور ویلڈنگ۔
4. سطح کا علاج
زنگ آلودگی اور نجاست کو دور کرنے کے لئے سینڈ بلاسٹنگ۔
پرائمر اور اینٹی - سنکنرن پینٹ کوٹ کا اطلاق۔
کنٹرول شرائط کے تحت علاج اور خشک ہونا۔
5. مکینیکل حصوں کی اسمبلی
مین بیم پر ریلوں کی تنصیب۔
اختتامی گاڑیوں اور ٹرالی پر پہیے ، موٹریں ، گیئر باکسز کا بڑھتے ہوئے۔
لہرانے کے طریقہ کار کو جمع کرنا (ڈھول ، تار رسی ، ہک بلاک)۔
6. بجلی کے نظام کی تنصیب
کنٹرول پینل ، موٹرز ، حد سوئچ ، الارم اور سینسر کی وائرنگ۔
کنٹرول طریقوں کا انضمام (لاکٹ ، ریموٹ ، کیبن)۔
بجلی کے اجزاء اور حفاظتی آلات کی جانچ۔
7. کوالٹی کنٹرول اور ٹیسٹنگ
جہتی معائنہ اور سیدھ کی جانچ۔
لفٹنگ کی گنجائش کی تصدیق کے ل load لوڈ ٹیسٹنگ (جامد اور متحرک)۔
تمام حرکات کی فنکشنل جانچ: لہرانے ، ٹرالی سفر ، کرین ٹریول۔
سیفٹی سسٹم کی توثیق (الارم ، حد سوئچ ، بریک)۔
8. پیکیجنگ اور ترسیل
اگر شپمنٹ کے لئے ضرورت ہو تو اجزاء کی بے ترکیبی۔
نقل و حمل کے دوران نقصان کو روکنے کے لئے حفاظتی پیکیجنگ۔
کسٹمر سائٹ پر لوڈ اور بھیجنا۔
9. - سائٹ کی تنصیب اور کمیشننگ پر
سائٹ پر کرین ڈھانچے کی اسمبلی۔
سیدھ اور ریل کی تنصیب۔
بجلی کا کنکشن اور سسٹم انشانکن۔
حتمی بوجھ کی جانچ اور آپریٹر کی تربیت۔

ورکشاپ کا نظارہ:
کمپنی نے ذہین سازوسامان کے انتظام کا پلیٹ فارم انسٹال کیا ہے ، اور اس نے روبوٹ کو سنبھالنے اور ویلڈنگ کے 310 سیٹ (سیٹ) انسٹال کیا ہے۔ منصوبے کی تکمیل کے بعد ، وہاں 500 سے زیادہ سیٹ (سیٹ) ہوں گے ، اور سامان نیٹ ورکنگ کی شرح 95 ٪ {. 32 ویلڈنگ لائنوں کو استعمال میں رکھی جائے گی ، 50 کو انسٹال کرنے کا منصوبہ بنایا گیا ہے ، اور پوری پروڈکٹ لائن کی آٹومیشن ریٹ 85 ٪ تک پہنچ گئی ہے۔





ڈاؤن لوڈ، اتارنا ٹیگ: ڈبل گرڈر گینٹری کرین لفٹنگ ، چین لفٹنگ ڈبل گرڈر گینٹری کرین مینوفیکچررز ، سپلائرز ، فیکٹری
شاید آپ یہ بھی پسند کریں
انکوائری بھیجنے



























